- Архитектурные рудименты: от чего массово отказываются в 2026 году
- Хитовые планировки 2026 года: что выбирают прагматичные заказчики
- Иллюзия экономии: почему строить без проекта - это прямой путь к катастрофе
- Начните строительный сезон правильно
Эволюция загородного дома: хитовые планировки 2026 года и решения, которые остались в прошлом
Начало весны - традиционный старт строительного сезона в Беларуси. Снег сошел, земля оттаивает, а вместе с ней оживают мечты о собственном загородном доме. Однако реалии 2026 года диктуют свои правила: строить «как у соседа десять лет назад» сегодня не просто немодно, но и финансово неоправданно. Евгений Губский, руководитель проектной компании ООО «Архитектурные решения», рассказывает, как изменился подход к проектированию, какие планировки выбирают прагматичные заказчики и почему отказ от строительного проекта - это главная ошибка, ведущая к долгострою и финансовым проблемам.
Рынок загородной недвижимости переживает серьезную трансформацию. Если раньше дом был символом статуса, и его площадь зачастую измерялась сотнями квадратных метров, то сегодня на первое место вышли рациональность, энергоэффективность и эргономика. Мы в компании ежедневно анализируем запросы клиентов и видим четкую картину: белорусы научились считать деньги - как на этапе стройки, так и на этапе последующей эксплуатации жилья.
Давайте разберем, что навсегда ушло в прошлое, а какие решения стали абсолютными хитами этого сезона.

Архитектурные рудименты: от чего массово отказываются в 2026 году
Анализируя объекты, которые выставляются на продажу как «недострои», мы видим одни и те же ошибки, заложенные еще на этапе идеи. Вот три главных антитренда, от которых современные заказчики отказываются:
- Огромные площади и 2-3 этажа. Дома по 250-300 квадратных метров уступили место компактному жилью. Строительство второго этажа (и тем более цоколя) тянет за собой устройство дорогих перекрытий, монолитных лестниц, усложнение инженерных сетей и систем отопления. А главное - бегая по лестницам изо дня в день, владельцы быстро понимают всю непрактичность такого решения.
- Сложные кровли с башенками и кукушками. Чем сложнее геометрия крыши, тем выше риск протечек, больше отходов кровельных материалов и дороже работа строителей. Современный тренд - это лаконичная вальмовая (четырехскатная), двускатная или плоская кровля. Это стильно, надежно и экономично.
- Балконы в частном доме. Это один из самых бесполезных элементов загородной жизни. Как показывает практика, на балкон в частном доме выходят дважды: когда дом только построен, и когда нужно протереть там пыль. Вся реальная жизнь и отдых на свежем воздухе проходят на террасе первого этажа.
Хитовые планировки 2026 года: что выбирают прагматичные заказчики
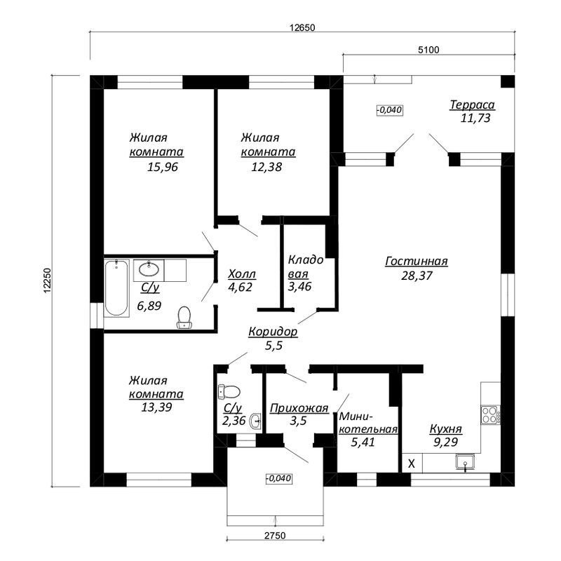
Сегодня в центре внимания - человек и его комфорт. Идеальный дом 2026 года в Беларуси - это, как правило, одноэтажное строение площадью 100-140 квадратных метров с четким зонированием.

Вот 4 столпа, на которых строятся самые востребованные проекты этого сезона:
1. Кухня-гостиная как сердце дома
Изолированные маленькие кухни ушли в прошлое. Заказчики выбирают просторные open-space зоны (от 35 до 50 кв.м), где кухня, столовая и гостиная объединены в одно светлое пространство с панорамными окнами и обязательным выходом на крытую террасу. Это идеальное место для семейных вечеров и приема гостей.
2. Разделение на приватную и гостевую зоны
Современная планировка исключает пересечение потоков. Спальная зона (приватная) проектируется в отдельном крыле дома или отделяется от шумной гостиной коридором и буферными зонами (например, санузлами или гардеробными).
3. Мастер-спальня
Это абсолютный хит последних лет, который в 2026 году стал обязательным требованием для домов комфорт-класса. Суть мастер-спальни в том, что хозяева дома имеют свой собственный блок, включающий не только место для сна, но и личную гардеробную, а также отдельный санузел.
4. Скрытые системы хранения и технические помещения
Современный дом не должен обрастать шкафами. В грамотном проекте всегда предусмотрена котельная, отвечающая актуальным нормативам газовиков или энергетиков, отдельная постирочная, кладовая при кухне (для хранения припасов и техники) и вместительные гардеробные.
Иллюзия экономии: почему строить без проекта - это прямой путь к катастрофе
Часто в начале сезона к нам приходят люди с мыслью: «Зачем мне платить за проект? Я скачал картинку из интернета, строители по ней все сделают». Скачанная из интернета планировка не учитывает ни геологию вашего участка, ни перепады высот, ни реальные нагрузки. И здесь начинается самое страшное.
В народе бытует миф, что строители без проекта будут перестраховываться и заливать лишний бетон, раздувая бюджет. В реальности 2026 года все происходит с точностью до наоборот. Чтобы выиграть по ценовому предложению среди других бригад и заманить вас «выгодной» сметой, недобросовестные подрядчики в разы упрощают строительные нормы и грубо отходят от технологии.
К чему это приводит на практике?
Фундамент «на глазок» и экономия на скрытых работах. Мелкозаглубленная лента, залитая прямо в землю без нормальной подготовки и армирования - это горькая реальность, с которой мы в ООО «Архитектурные решения» сталкиваемся постоянно при техническом аудите чужих объектов.
Тихая подмена материалов. Когда у вас нет на руках официального документа со спецификациями, заложенная арматура вдруг становится тоньше положенной, а бетонный раствор чудесным образом становится водянистым, просто потому что так его легче заливать.
Отложенная катастрофа. Ремонт лопнувшего фундамента (пусть это произойдет даже через пару лет) или трещина в несущей стене, которая уже давно оштукатурена и гордо несет на себе новенький телевизор - это страшный сон любого домовладельца. Исправление таких фатальных ошибок стоит в десятки раз дороже, чем изначальный заказ грамотного проектирования.

Качественный проект - это ваш главный инструмент контроля на стройплощадке. Он просто не позволит строителям нарушить технологию возведения дома, так как в нем жестко заложены как подробные чертежи всех узлов, так и точные спецификации необходимых материалов вплоть до диаметра арматуры, марки бетона или сечения стропил.
Профессиональный проект решает как задачу надежности здания, так и вашей личной безопасности при проживании в нем. Вы получаете дом, который простоит десятилетия, а не рассыпется после первой же суровой зимы.
Начните строительный сезон правильно
Фундамент успешной стройки закладывается не бетоном в котловане, а грамотными чертежами на столе архитектора. Наличие подробного проекта — это единственная гарантия того, что ваш дом простоит десятилетия, будет комфортным для жизни и не превратится в финансовую черную дыру из-за строительного брака.
Не рискуйте своими сбережениями и нервами, доверяя случайным эскизам из сети и обещаниям недобросовестных подрядчиков сделать все «дешево и на глазок». Сегодня у грамотного заказчика есть два надежных и профессиональных пути:
1. Выбор типового проекта из нашего каталога. Это идеальное решение для тех, кто хочет сэкономить время и получить проверенную на практике, выверенную до миллиметра рабочую документацию. В нашем каталоге уже собраны те самые хитовые планировки 2026 года, в которых учтены все современные тренды: от просторных кухонь-гостиных до скрытых систем хранения и мастер-спален. Вы получаете готовый комплект чертежей и спецификаций, по которому можно сразу начинать стройку.
2. Разработка индивидуального проекта. Если у вас нестандартный участок с перепадами высот, особенные требования к зонированию или уникальное видение архитектуры фасадов, мы создадим дом вашей мечты абсолютно с нуля.
Команда ООО «Архитектурные решения» готова взять на себя индивидуальное проектирование вашего будущего дома. Мы проектируем надежные, современные и продуманные до мелочей дома, учитывая ваши пожелания, рамки бюджета и строгие строительные нормы Республики Беларусь.
Сделайте первый шаг к дому своей мечты: запишитесь на консультацию, и мы разработаем индивидуальный или подберем идеальный готовый проект, который сбережет ваши деньги и превзойдет ожидания!











